30坪の平屋は、「広すぎず狭すぎない」ちょうどよいサイズとして人気があります。しかし、同じ30坪でも間取りの作り方によって、住み心地や使いやすさは大きく変わります。廊下の取り方や収納計画、LDKの配置などを工夫しなければ、「思ったより狭い」と感じてしまうことも少なくありません。
この記事では、30坪の平屋で実際に採用されている間取り実例を紹介するとともに、理想の間取りをつくるための設計ポイントを解説します。
これから平屋を建てたい方や、30坪でどんな暮らしができるのか知りたい方は、ぜひ参考にしてください。

なお、「30坪の平屋が得意な会社がどこか分からない」「自分たちの理想がこの広さで実現できるか不安」という方には、設計実績100棟以上の現役設計士が運営するぶっちゃけハウジングの無料相談もご活用ください。設計実績100棟以上の現役設計士が運営するぶっちゃけハウジングの無料相談もご活用ください。工務店選びから住宅完成まで、お客様負担0円でサポートしています。
平屋30坪はどれくらいの広さ?後悔しないための基礎知識
30坪という広さは「ちょうどいい」と言われる一方で、間取り設計次第で満足度が大きく変わります。まずは広さの実態とメリット・注意点を整理しておきましょう。
30坪=約99㎡のリアルな広さ感
30坪は、面積にすると約99㎡です。畳数に換算するとおよそ60畳ほどの広さで、一般的な2LDKアパート(約55〜65㎡)よりゆとりがあり、3LDKマンション(70〜80㎡台)と同程度、もしくはやや広い規模感といえます。そのため、3〜4人家族が暮らす住宅として現実的なサイズといえるでしょう。
ただし、この99㎡には廊下や収納、水回りなどのスペースも含まれます。実際に居室として使える面積は、間取りの作り方によって大きく変わります。
廊下が多い設計では居室が狭く感じることもあり、反対に動線や収納を工夫すれば、同じ30坪でもゆとりある空間として感じられるのが特徴です。30坪の平屋は、設計次第で住み心地が大きく変わる広さといえるでしょう。
30坪平屋のメリット
30坪の平屋は、ワンフロアで生活が完結する点が大きな魅力です。上下階の移動がないため家事動線が短く、料理・洗濯・収納などの作業を効率よく行えることから、子育て世帯や共働き家庭にも人気があります。
また、階段がないことで将来的な転倒リスクを減らし、老後まで安心して暮らしやすい住まいになる点もメリットです。
さらに平屋は2階がない分、勾配天井や高窓などを取り入れやすく、縦方向の空間を活かした設計が可能です。限られた面積でも視覚的な広がりを生み出し、開放感のある住まいを実現できます。
30坪平屋の注意点
一方で、30坪の平屋は決して余裕のある広さとはいえないため、間取りを考える際は工夫しなければなりません。部屋数を増やしすぎたり廊下を多く設けたりすると、有効に使える面積が減り、実際よりも狭く感じてしまうことがあります。
また、平屋は建物が1階に広がる構造のため、基礎や屋根の面積が大きくなり、同じ延床面積の2階建てと比べると建築コストが高くなる傾向があります。
満足度の高い住まいにするためには、動線や収納を含めた計画的な間取り設計をしなければなりません。
平屋30坪の間取り実例7選
30坪の平屋は、間取りの工夫によって暮らしやすさが大きく変わります。ここでは、動線・採光・収納などに特徴のある平屋30坪前後の間取り実例を紹介します。理想の住まいづくりの参考にしてください。
実例①:廊下を減らす回遊動線型

LDKを住まいの中心に配置し、各部屋へスムーズに移動できる回遊動線を取り入れた3LDKの平屋です。廊下を最小限に抑えた間取りにすることで、有効面積を広く確保しながら効率的な生活動線を実現しています。
リビングは勾配天井を採用し、タイルと間接照明を組み合わせたアクセントウォールが空間のデザイン性を高めています。
さらに、吊戸棚のないオープンキッチンを採用することで、リビング全体を見渡せる開放的な空間に。コンパクトな30坪でも、動線と空間設計を工夫することでゆとりある暮らしを実現しています。
実例②:採光を確保するコの字型・中庭型

建物をコの字型に配置し、中央に中庭を設けた約31坪の平屋です。中庭を囲むようにLDKや各部屋を配置することで、家の中心まで自然光が届きやすく、平屋でも明るく開放的な住まいを実現しています。
LDKは一直線のレイアウトで中庭に面した大きな窓から光を取り込み、室内と屋外がゆるやかにつながる空間構成が特徴です。また、中庭とは反対側の窓は縦すべり窓にすることで、採光を確保しながらプライバシーにも配慮しています。平屋で採光や通風を確保したい人に参考になる間取りです。
実例③:LDKの開放感を出す設計

約30坪の限られた面積の中でも、LDKを広々と確保することで開放感を高めた4LDKの平屋です。リビングには勾配天井を採用し、縦方向の広がりをつくることで、実際の面積以上にゆとりのある空間を演出しています。
また、洗面・浴室の近くにランドリールームを設け、洗濯から室内干し、アイロンがけまでを一か所で完結できる家事動線も特徴です。
家族の個室を確保しつつ、リビングを広くとることで家族が自然と集まる住まいになっています。30坪でも広がりのある空間をつくりたい人におすすめです。
実例④:4LDKを成立させた間取り

約31.7坪の広さの中で4LDKを実現した平屋の間取りです。東西に長いI型のプランを採用し、限られた面積でも部屋数を確保しています。
LDKには大きな開口と吹き抜けを設け、平屋ならではの縦方向の広がりを活かした明るく開放的な空間を実現。さらに2つの居室を南側に配置することで、家全体に光が届きやすい設計になっています。
30坪前後でも子ども部屋を含めた複数の個室を確保したい家族にはぴったりの間取りではないでしょうか。
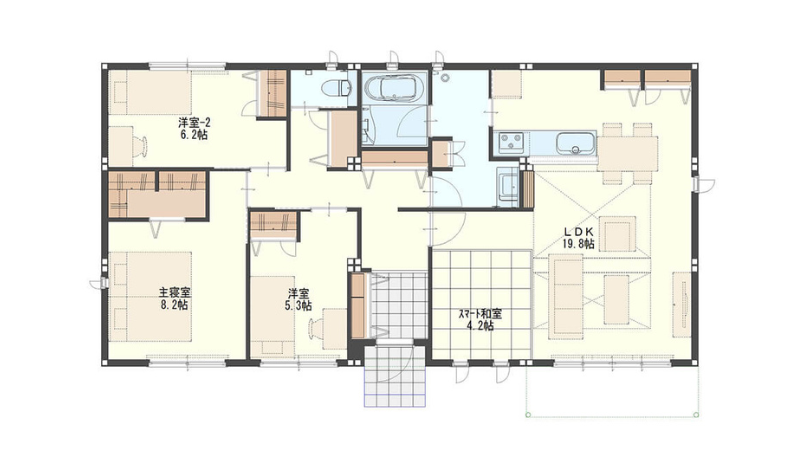
実例⑤:ランドリールーム中心設計

約30.74坪の平屋に2.5帖のランドリールーム(ユーティリティー)を設け、家事動線を効率化した2LDKの間取りです。ランドリールームは脱衣室とファミリークローゼットの間に配置されており、LDK側と玄関ホール側のどちらからもアクセスしやすい設計になっています。
洗濯・室内干し・収納までを一つの動線で完結できるため、毎日の家事負担を軽減できるのが特徴です。また、家全体を回遊できる動線になっており、必要に応じて水回りや各居室へスムーズに移動できます。共働き世帯や家事効率を重視したい家庭におすすめしたい間取りです。
実例⑥:大型ファミクロで収納問題解決

大型のファミリークローゼットを取り入れ、収納力と生活動線の効率化を両立した平屋の間取りです。寝室からウォークスルークローゼットを通って洗面室へつながる動線になっており、外出前の身支度や帰宅後の着替えをスムーズに行えるよう工夫されています。
また、子ども部屋はリビングを経由する位置に配置しました。自然と家族が顔を合わせる機会を増やす設計になっています。リビング・ダイニングは通路を兼ねるレイアウトにすることで空間のゆとりを確保。収納と家族のコミュニケーションを両立した、暮らしやすい間取りといえるでしょう。
実例⑦:バリアフリー・老後対応型

将来の暮らしやすさを考えたバリアフリー設計の平屋です。LDKを中心に各部屋をつなぐ開放的な間取りとし、建具や間仕切りを最小限に抑えることで、家の中をスムーズに移動できる動線を確保しています。
また、キッチンや洗面、浴室などの水回りを近くにまとめることで、日常の家事動線を短縮。段差のない設計や広めの通路幅を確保し、将来車椅子や介助が必要になった場合でも使いやすい住まいになっています。長く安心して住み続けたい方におすすめのシンプルな間取りです。
30坪平屋を快適にする、5つの設計ポイント
30坪の平屋は、設計次第で住み心地が大きく変わります。限られた面積でも快適な住まいを実現するためには、動線や収納、採光などを意識した間取り計画が重要です。ここでは建築士の視点から、30坪平屋の課題を解消する設計のポイントを解説します。
①廊下を減らす設計にする
30坪という限られた面積では、廊下が増えるほど居住スペースが削られてしまいます。そのため、廊下をできるだけ少なくし、LDKを中心に各部屋へアクセスできる間取りにすることが重要です。
回遊動線を取り入れることで、移動距離が短くなり生活動線もスムーズになります。限られた面積でも体感的な広さを確保しやすくなる設計手法です。
②水回りは一直線にまとめる
30坪の平屋では、キッチン・洗面・浴室・ランドリールームなどの水回りをできるだけ近くにまとめて配置することが重要です。水回りを一直線に並べることで、料理や洗濯などの家事動線が短くなり、日々の作業を効率よく行えるようになります。
設備配管もまとめやすくなるため、メンテナンス性やコスト面のメリットが生まれる点も特徴です。限られた面積を有効に使うための基本的な設計ポイントといえるでしょう。
③部屋数だけでなく収納計画も意識する
30坪の平屋では、部屋数を増やすことを優先すると収納スペースが不足しやすくなります。そのため、間取りを考える際は必要な収納量を確保することが重要です。
ファミリークローゼットやパントリーなどの共有収納を設けることで、各部屋を広く使いやすくなります。収納計画を先に考えることが、生活感を抑えた快適な住まいづくりにつながります。
④LDKは20帖前後が黄金バランス
30坪の平屋では、LDKの広さと部屋数のバランスを意識することが大切です。個室を増やしすぎるとリビングが狭くなり、家族が集まる空間に圧迫感が生まれてしまうことがあります。
目安としては、LDKを20帖前後確保すると、開放感と居室数のバランスを取りやすくなります。家族が長く過ごす空間だからこそ、ゆとりのある面積配分を意識した設計が重要です。
⑤将来の可変性を持たせる
30坪の平屋を長く快適に使うためには、将来のライフスタイルの変化を見据えた可変性のある設計が重要です。例えば、子ども部屋を将来2部屋に分けられるようにしたり、使わなくなった部屋をワークスペースや趣味室として活用できるようにしたりする方法があります。
可動式の間仕切りや家具で空間を調整できる設計にしておくことで、家族構成や暮らし方の変化にも柔軟に対応できる住まいになります。
30坪平屋はこんな人におすすめ
30坪の平屋は、3〜4人家族の子育て世帯にとって暮らしやすい広さの住まいです。ワンフロアで生活が完結するため、家族の気配を感じながら安心して子育てができる点も魅力といえるでしょう。
また、現在は夫婦2人で暮らしているものの、将来的に親との同居を検討している家庭にも適しています。
さらに、階段のない平屋は老後も安心して住み続けやすく、長期的な住まいとして選ばれるケースも増えています。加えて、洗濯や料理などの家事動線を短く設計しやすいことから、家事効率を重視する共働き世帯にも向いています。
暮らし方やライフステージに合わせて柔軟に対応できるのが、30坪平屋の大きな魅力です。
まとめ
30坪の平屋は、広すぎず狭すぎない現実的な広さで、3〜4人家族でも快適に暮らしやすい住まいです。ただし、限られた面積だからこそ、廊下を減らした動線設計や収納計画、LDKの広さのバランスなど、間取りの工夫が住み心地を大きく左右します。
今回紹介した実例のように、回遊動線や中庭、家事効率を高める水回り配置などを取り入れることで、30坪でも開放感と使いやすさを両立した住まいを実現できます。これから平屋を検討する際は、実例を参考にしながら、自分たちの暮らし方に合った間取りを考えましょう。

なお、「自分たちの理想を30坪で叶えてくれる会社がどこか分からない」「今の間取りで本当に後悔しないか、設計士の本音が聞きたい」という方には、設計実績100棟以上の現役設計士が運営するぶっちゃけハウジングの無料相談もご活用ください。工務店選びから住宅完成まで、お客様負担0円でサポートしています。

